Departamento en Venta Monoambiente en O'higgins y Saavedra S/N

Departamento en Venta

Departamento en Venta Monoambiente en O'higgins y Saavedra S/N

USD 11.111

O'higgins y Saavedra S/N, Centro, Bahía Blanca (8000), Provincia de Buenos Aires, Argentina

0

baños



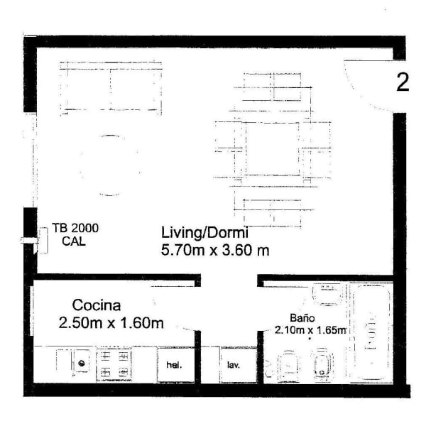
Departamentos monoambiente, uno y dos dormitorios. Distintas orientaciones y dimensiones. Opciones de 42 m², 51 m², 56 m², 67 m², 109 m². Excelente ubicación dentro de la ciudad. Financiación en pesos y entrega dentro de los doce meses. Memoria descriptiva Estructura: Se adopta hormigón armado, cumpliendo con los reglamentos del CIRSOC, conformándose por bases aisladas, columnas, vigas y losas, con materiales de primera calidad y dimensiones según cálculo. Mampostería:Los muros serán ladrillos huecos cerámicos, de 8, 12 y 18 cm. de espesor según proyecto, asentado con mezcla de cal reforzada. Aislaciones: Toda construcción debajo de la cota +0,10, tendrá un aislamiento hidrófugo compuesto por mortero de cemento-hidrófugo- material bituminoso. Las aislaciones en muros exteriores se efectuarán con el azotado de mortero de cemento e hidrófugo y el agregado de hidrófugo al mortero de cal reforzado. Revoques interiores: El jaharro interior será con mortero de cal y el enduído de yeso. Revoques exteriores: El revoque exterior será de tres capas, un azotado hidrófugo, un jaharro a la cal y un enduído a la cal. Buñas según diseño pre establecido, serán de aluminio. Contrapisos: Sobre terreno natural, serán de hormigón de cascotes de 15cm. de espesor, sobre losas será de conchilla de 8 cm. de espesor y los con pendientes de conchilla con un espesor mínimo de 5 cm.Yesería:Los cielorrasos serán estucados en yeso al igual que en muros interiores propios y comunes. Revestimientos: Los locales sanitarios llevan cerámicos 20×20 blanco de primera calidad hasta 2,00 m. de altura y en cocina 60cm. sobre mesada. Pisos y zócalos:Asentados sobre carpeta de nivelación, los pisos y zócalos serán cerámicos de primera calidad monococción de 30×30 cm. tanto en el interior del departamento como en las circulaciones, las veredas serán de baldosas de cemento de 30×30. Carpintería: Las aberturas serán: exteriores en aluminio de primera calidad, corrediza con cortinas de enrollar de pvc reforzadas, con vidrios de 3 y 5 mm.de espesor, las puertas placas de 45mm. de espesor tipo nido de abejas, de cedrillo natural con tapacantos y marco en chapa estampada n°18, herrajes en hierro, picaportes en bronce platil y cerradura común, las puertas de ingreso serán placas en dos tableros con cerradura de doble paleta, los muebles bajo mesada serán enchapados 15mm. con cajoneras y estantes. No se proveerá ningún tipo de mueble colgante en cocina. Placard con frentes corredizos de pino o cedrillo con barral. Las barandas en los balcones serán vidriadas con carpintería de aluminio. Instalación sanitaria:Las cañerías de agua fría y caliente -montantes y bajadas serán de termofusióntricapa, las cañerías de desagües primarios y secundarios pvc 3,2 al igual que los pluviales. Artefactos sanitarios:El inodoro con depósito exterior, bidet, lavamanos con pedestal, serán marca Ferrum color blanco, pileta de cocina en acero inoxidable. No se instalará bañera, se realizará un receptáculo revestido en cerámicos de calidad superior, con flor de grandes dimensiones o “duchón” anti calcáreo. Grifería:Serán de tipo stándard FV de primera calidad, monocomando en cocinas. Instalación de gas: Serán con caños revestidos con epoxi en un todo de acuerdo a las normas de CAMMUZZI GAS PAMPEANA para abastecer a cocina.Instalación de eléctrica: Serán de acuerdo a la reglamentación municipal y de EDES S.A., tablero individual con disyuntor diferencial y llave termomagnética, llaves y tomas “gelux” o similar standard, conductores normalizados y cañería de hierro. Instalación baja tensión:Serán de acuerdo a las reglamentaciones municipales y de TELEFÓNICA DE ARGENTINA, el departamento contará con una toma telefónica y una de televisión, portero eléctrico de primera calidad. Equipamiento: El edificio contará con TRES ascensores semiautomáticos y puertas tijera, interior cabina con comando electrónico, botonera digital, para cuatro personas (300 kg.), portero eléctrico con central, botonera planta baja

Monoambiente dormitorios
0 baños

Publicado hace 7 meses


Venta

Negocios Inmobiliarios Prestigio

Quiero saber más sobre esta propiedad