Duplex en Venta 2 dormitorios en Bañuelos 2455

Duplex en Venta

Duplex en Venta 2 dormitorios en Bañuelos 2455

USD 180.000

Bañuelos 2455, Santa Margarita, Bahía Blanca (8000), Provincia de Buenos Aires, Argentina

2

dormitorios

2

baños



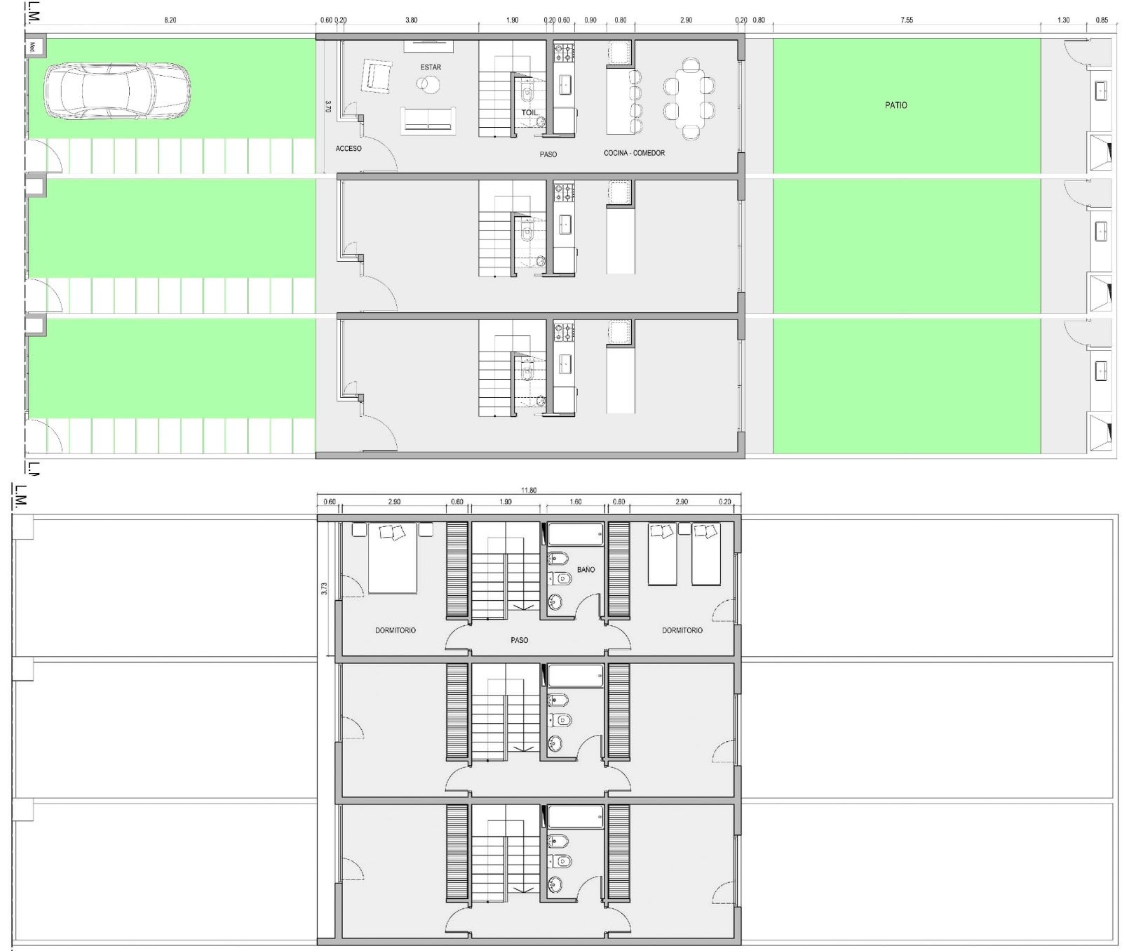
BAÑUELOS 2455 - Bº SANTA MARGARITA: Hermoso dúplex A ESTRENAR de 2 dorm + 2 baños.
PLANTA BAJA: Entrada p/2 vehículos, living/estar al frente, baño de recepción, cocina/comedor diario con barra desayunadora y ventanal al patio, patio con lavadero y fogón. PLANTA ALTA: 2 dorm amplios dorm con placar, baño completo.
Pisos porcelanato. Baños con artefactos Ferrum y grifería FV. Aberturas doble vidrio. Calefacción por radiadores. Sup 110mts.

NO ACEPTAN PERMUTA

CONSULTE POR FINANCIACIÓN

2 dormitorios
2 baños

Publicado hace 7 meses


Venta

Mancisidor Propiedades

Quiero saber más sobre esta propiedad